Attraktives Zweifamilienhaus mit Balkon, Terrasse & unverbaubarem Blick in Niedermerz!
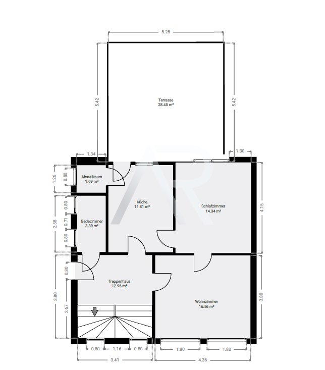
In ruhiger Lage von Aldenhoven-Niedermerz präsentiert sich dieses gepflegte Wohnhaus mit flexiblem Nutzungskonzept, großzügigem Grundstück und einem herrlichen unverbaubaren Fernblick. Mit ca. 130 m² Wohn- und Nutzfläche (Dachgeschoss aktuell nicht als Wohnfläche genehmigt, aber voll ausgebaut und mit leichten Handgriffen genehmigungsfähig), verteilt auf zwei Wohneinheiten, eignet sich die Immobilie ideal als Mehrgenerationenhaus, zur teilweisen Eigennutzung oder als Kapitalanlage.
Die Ausstattung überzeugt: Balkon und Terrasse (Terrasse 2019 erneuert) bieten sonnige Außenflächen. Das Erdgeschoss wird derzeit von einer 83-jährigen Seniorin mit lebenslangem Wohnrecht bewohnt; hier fließt eine monatliche Mietbeteiligung von ca. 300 € kalt. Das Obergeschoss steht frei zur Verfügung.
In den Jahren 2002/2003 wurden wesentliche Sanierungen durchgeführt (u. a. Elektro). Das Badezimmer im Erdgeschoss wurde 2016 modernisiert und mit einer bodentiefen Dusche ausgestattet, während das Badezimmer im Obergeschoss 2018 erneuert wurde. Eine hochwertige Einbauküche im OG ist bereits im Kaufpreis enthalten.
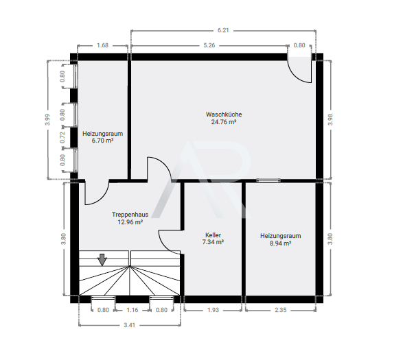
Zur weiteren Ausstattung gehören eine Garage direkt am Haus, eine gepflegte Vollunterkellerung mit Wasch- und Trockenraum sowie ein moderner Glasfaseranschluss. Beheizt wird die Immobilie über eine gepflegte Öl-Zentralheizung aus 1994, die laut Schornsteinfeger noch über eine hohe Lebenserwartung verfügt.
Das großzügige Grundstück eröffnet vielseitige Möglichkeiten zur individuellen Gestaltung – sei es für Familien, Hobbygärtner oder als Rückzugsort im Grünen.
Diese Immobilie in Aldenhoven-Niedermerz vereint solide Substanz, durchgeführte Sanierungen und eine ruhige Lage mit Weitblick. Eine seltene Gelegenheit für Eigennutzer und Kapitalanleger gleichermaßen.
Vereinbaren Sie jetzt Ihren Besichtigungstermin unter 02402 906 978 0 und überzeugen Sie sich selbst vor Ort!












